Espace propriétaire
fr

Votre recherche

Nîmes (30900)

6 pièces - 179 m²

Maison proximité centre ville Nîmes proposé par Corinne Ponce immobilier

260 000 €
Ref : VM4633
A propos de ce bien

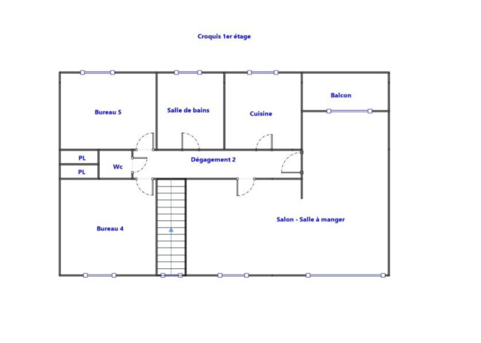
SOUS COMPRMIS PAR NOS SOINS A proximité immédiate du centre ville et de toutes les commodités, l"agence Corinne Ponce immobilier vous propose cette villa d'une surface habitable d'environ 180 m² de type 6 sur une parcelle d'environ 361 m² qui offre de nombreuses possibilités. Le rez de chaussée de 89m² et modulable à votre convenance dispose actuellement de 4 pièces dont deux avec de grandes baies vitrées, une cuisine, une salle d'eau avec wc et une partie technique. A l'étage 90 m² également modulable avec un grand séjour avec cheminé et salle à manger aux grandes ouvertures traversantes et donnant accè à une agréable balcon qui surplombe le jardin. Une cuisine séparée, deux chambres, une salle de bain et un wc séparé. Les combles d'une surface au sol de 90 m² pourraient être aménagées. Côté extérieur, de nombreuses places de stationnement à l'avant de la maison et un espace terrasse et un jardin végétalisé sur les cotés et l'arrière de la maison. Très bon état de construction de la maison, double vitrage et volets électriques de la majorité des menuiseries, ballon d'eau récent et toiture vérifiée. Un très joli potentiel à aménager selon ses besoins !

Descriptif de ce bien
Général
Code postal 30900
Surface habitable (m²) 179 m²
surface terrain 361 m²
Nombre de chambre(s) 4
Nombre de pièces 6
Nombre de niveaux 1
Détails
Nb de salle de bains 1
Nb de salle d'eau 1
Cuisine Séparée
Mode de chauffage Gaz de ville
Type de chauffage Radiateur
Format de chauffage Individuel
Exposition Sud
Année de construction 1969
Quartier 3 Piliers
Terrain arboré OUI
Financier
Prix de vente 260 000 €
Les honoraires d'agence seront intégralement à la charge du vendeur  
Taxe foncière annuelle 2 186 €
Energie
DPE GES
Contacter pour ce bien
L'agence
Téléphone 04 66 21 58 00
Adresse
7, Avenue Jean Jaurès 30900 Nîmes

* Champ obligatoire

Les informations recueillies sur ce formulaire sont enregistrées dans un fichier informatisé par La Boite Immo agissant comme Sous-traitant du traitement pour la gestion de la clientèle/prospects de l'Agence / du Réseau qui reste Responsable du Traitement de vos Données personnelles.
La base légale du traitement repose sur l’intérêt légitime de l'Agence / du Réseau.
Elles sont conservées jusqu'à demande de suppression et sont destinées à l'Agence / au Réseau.
Conformément à la loi « informatique et libertés », vous pouvez exercer votre droit d'accès aux données vous concernant et les faire rectifier en contactant l'Agence / le Réseau.
Si vous estimez, après avoir contacté l'Agence / le Réseau, que vos droits « Informatique et Libertés » ne sont pas respectés, vous pouvez adresser une réclamation à la CNIL.
Nous vous informons de l’existence de la liste d'opposition au démarchage téléphonique « Bloctel », sur laquelle vous pouvez vous inscrire ici : https://www.bloctel.gouv.fr 
Dans le cadre de la protection des Données personnelles, nous vous invitons à ne pas inscrire de Données sensibles dans le champ de saisie libre
Ce site est protégé par reCAPTCHA, les Politiques de Confidentialité et les Conditions d'Utilisation de Google s'appliquent.

Découvrir nos outils